Mieszkanie na wynajem Białystok, Mickiewicza

4 pokoje
99.09 m²
40,37 zł/m2
2 piętro
ARE-MW-826

4 000 zł

Mieszkanie na wynajem
Oferta na wyłączność

Szczegóły oferty

Symbol oferty ARE-MW-826
Powierzchnia 99,09 m²
Powierzchnia użytkowa [m2] 99,09 m²
Powierzchnia balkonów/tarasów 15,00 m²
Liczba pokoi 4
Liczba sypialni 3
Rodzaj budynku blok
Technologia budowlana cegła
Kaucja zabezp. 5000
Standard
Opłaty wg liczników prąd
Piętro 2
Liczba pięter w budynku 6
Garaż garaż podziemny
Stan lokalu wysoki standard
Mies. czynsz admin. 1 100 PLN
Okna PCV
Balkon duży
Liczba balkonów 1
Rok budowy 2011
Widok na inne budynki
Gaz brak
Woda tak - miejska
Otoczenie centrum miasta
Ogrzewanie miejskie
Umeblowanie umeblowane
Winda tak
Liczba wind 1
Usytuowanie dwustronne
Pomieszczenia
Podłogi pokoi drewniana
Typ kuchni aneks kuchenny połączony z jadalnią i salonem
Rodzaj kuchni aneks kuchenny - połączony z salonem
Typ łazienki razem z wc
Liczba łazienek 1
Podłoga przedpokoi drewniana
Certyfikat energetyczny
Wskaźnik EP kwh/(m2 rok)
11.1
11.1
11.1
11.1
11.1
11.1
11.1
11.1
Wskaźnik EP: 11.1
kwh/(m2rok)
Wskaźnik EK: 95,54
kwh/(m2rok)
Wskaźnik EU: 73,62
kwh/(m2rok)
Katarzyna Kamińska

Katarzyna Kamińska

Pośrednik w Obrocie Nieruchomościami

Napisz wiadomość 17 Ofert

Opis nieruchomości

Polecamy Państwu atrakcyjne mieszkanie o powierzchni użytkowej 99,09m2 znajdujące się na 2 piętrze, w nowoczesnym budynku z windą przy ul. Orzeszkowej w Białymstoku (osiedle Mickiewicza).

Mieszkanie komfortowe o podwyższonym standardzie - umeblowane i wyposażone w sprzęt AGD oraz RTV- gotowe do zamieszkania.

Wyposażenie mieszkania: zmywarka, płyta indukcyjna, piekarnik, lodówka, pralka, kuchenka mikrofalowa, telewizor 40 cali oraz rzeczy niezbędne w kuchni, komody, pojemne szafy.

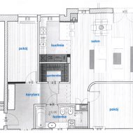
Rozkład pomieszczeń: przestronny salon połączony z aneksem kuchennym (z wyjściem na balkon o powierzchni ok.15m2), 3 sypialnie, łazienka oraz przedpokój.

Dodatkowym atutem mieszkania jest możliwość korzystania z 2 miejsc postojowych w garażu podziemnym za dodatkową opłatą w wysokości 500zł.

Budynek usytuowany na osiedlu z doskonale rozwiniętą infrastrukturą.

W pobliżu liczne sklepy, centra handlowe ( galeria Alfa, galeria Biała), przystanek autobusowy , szkoła oraz przedszkole.

Czynsz ofertowy wynosi: 4000zł + czynsz(ok. 1100zł) + opłata za prąd (200zł) oraz internet.

Wymagana kaucja zwrotna w wysokości 5000zł.

Oferta skierowana do rodzin, par, przedstawicieli firm.

Mieszkanie wynajmowane w trybie najmu okazjonalnego.

Mieszkanie dostępne od 1 lipca.

Więcej informacji w biurze.

Zapraszamy do zapoznania się z ofertą.

Lokalizacja nieruchomości

Pośrednik w Obrocie Nieruchomościami

Proszę wprowadzić poprawne imię i nazwisko
Proszę wprowadzić poprawny numer telefonu
Proszę wprowadzić poprawny adres e-mail
Proszę zaznaczyć wymagane zgody
Rozwiąż równanie:
22 6
Niepoprawny wynik